114096 Предложения3750 Агентства26780 Потребители

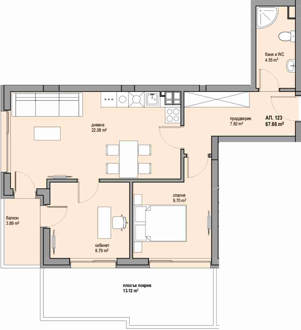
Продает Трехкомнатная квартира гр.София -Люлин 8 169000 EUR

РубрикаПродает
Вид недвижимостиТрехкомнатная квартира
Квартал Люлин 8
Населенный пунктгр.София
ОбластьСофия
ДержаваBulgaria - BG
Цена / Валюта
169000 EUR
Площадью94
Тип строительстваКирпич
Этаж5
Число этажей6
Описание:

Комм. предложение №1027712
Дата посл. измененияThu Mar 05 2026
Число посетителей114
Для контактов: Фирма: ЗАХИР - ВАЛЕНТИНА ПЪРВАНОВА
Держава: Bulgaria
Населенный пункт: гр.София
Адрес: гр. София
Контактные телефоны: 0884932691
E-mail: v.purvanova12@gmail.com

https://