114210 Предложения3748 Агентства26712 Потребители

Продает Многокомнатная квартира гр.София -Витоша 780100 EUR

РубрикаПродает
Вид недвижимостиМногокомнатная квартира
Квартал Витоша
Населенный пунктгр.София
ОбластьСофия
ДержаваBulgaria - BG
Цена / Валюта
780100 EUR
Площадью308
Тип строительстваКирпич
Этаж6
Число этажей6
ЦО+
Гараж+
Мебелировка+
Описание:

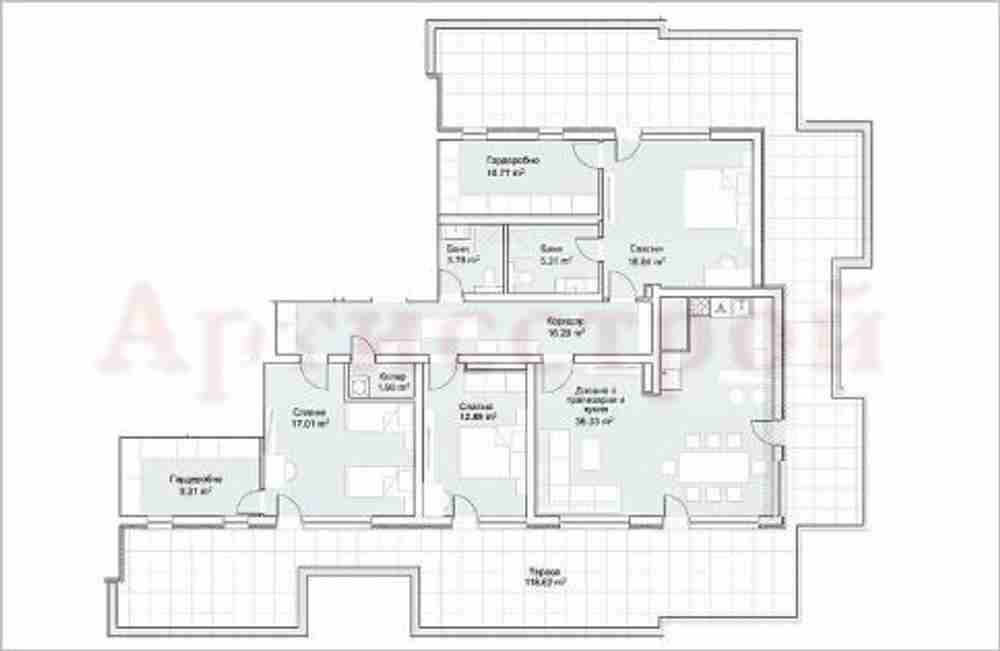
Многокомнатный апартамент пентхаус с Актом 16 в закрытом комплексе премиум класса в парковой зоне. Агенство Artisstroy предлагает: : вашему вниманию просторную многокомнатную квартиру пентхаус с застроенной площадью 148,54кв.м. и террасы площадью 101,24 кв.м. на 6-м этаже из 6 в закрытом элитном комплексе с Актом 16 от 2022 года в районе Лозенец-Витоша. Планировка: прихожая /два просторных коридора/, просторная гостиная с кухней и столовой, три спальни , три ванные комнаты, склад и панорамная терасса. Отопление: индивидуальный тепловой насос. Расположение: Юг, Восток, Запад. Цена за квартиру указана без НДС. Закрытый комплекс с обязательной платой за управление и обслуживание, которая составляет 1,88 лева. за кв.м. Подземные парковочные места и гаражи по цене от 37 000 евро без НДС. Удобства: детские площадки, зеленые аллеи. Фитнес-центр с оздоровительной зоной, ресторан с детским центром и 18 торговых точек. Безопасность: Контролируемый доступ, видеонаблюдение и охрана 24/7. Управление и обслуживание комплекса с компанией, контролируемой инвестором. Расположение: 5 минут пешком до станции метро Витоша, Ловен парк - Борисова градина, зоопарка, рядом МОЛЛ Парадайз, детских садов и спортивного комплекса. Агенство предлагает бесплатные консультации и содействие по ипотечным кредитам. Ремонты „ до ключ“, дизайнерские проэкты, меблировка. Предложение № 1017412 Еще больше вариантов пожалуйста здесь: многостайни апартаменти София
Комм. предложение №1017412
Дата посл. измененияTue Dec 16 2025
Число посетителей1815
Для контактов: Фирма: АРТИССТРОЙ
Держава: Bulgaria
Населенный пункт: гр.София
Адрес: Сердика 22
Контактные телефоны: 028502037; 0876834234; 0877834234
E-mail: artis1267@abv.bg

https://artisstroy.portalre.net