114216 Предложения3745 Агентства26681 Потребители

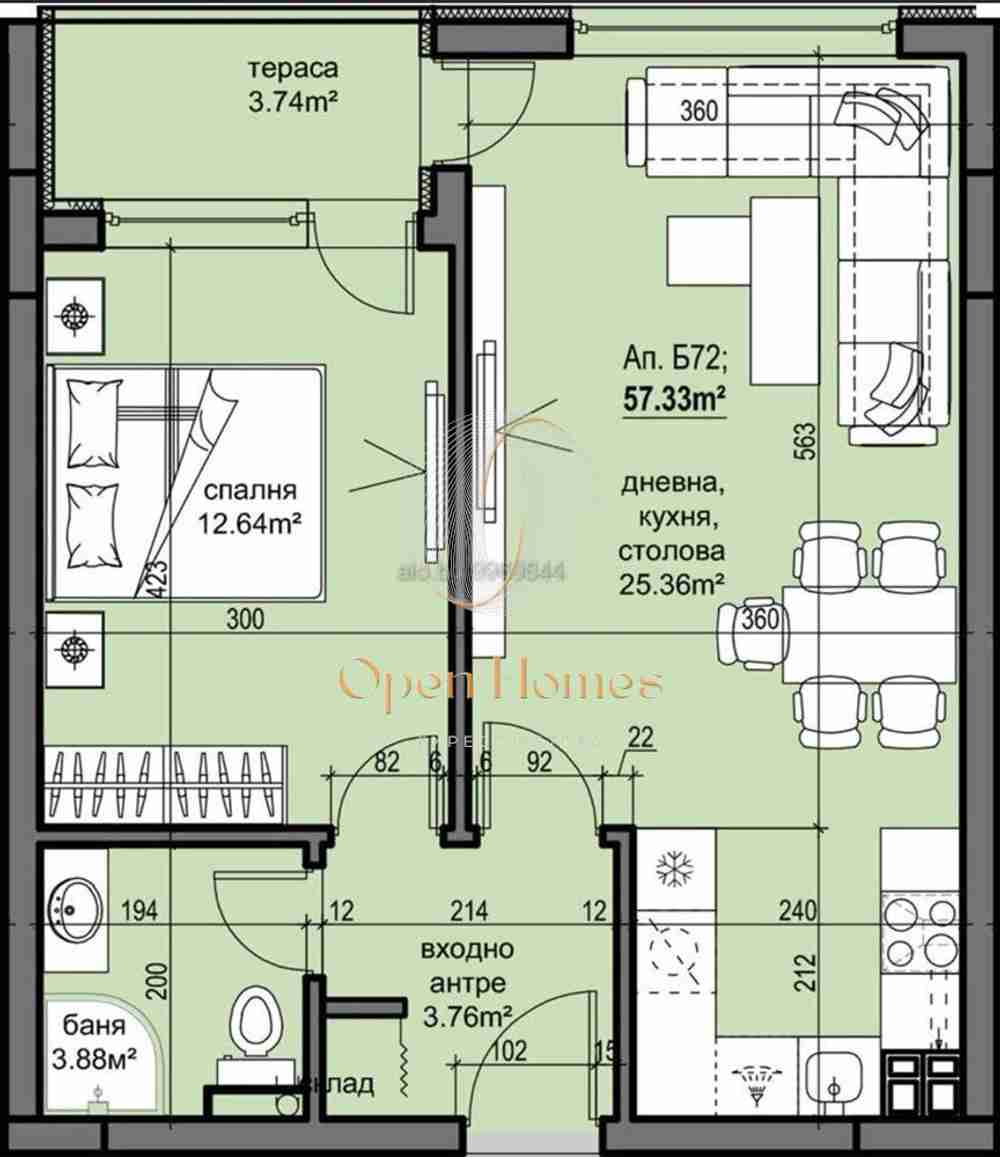
Продает Двухкомнатная квартира гр.Пловдив -Смирненски 125000 EUR

РубрикаПродает
Вид недвижимостиДвухкомнатная квартира
Квартал Смирненски
Населенный пунктгр.Пловдив
ОбластьПловдив
ДержаваBulgaria - BG
Цена / Валюта
125000 EUR
Площадью67
Тип строительстваКирпич
Этаж8
Число этажей9
Описание:

Комм. предложение №1026716
Дата посл. измененияThu Nov 06 2025
Число посетителей52
Для контактов: Фирма: OPEN HOMES
Держава: Bulgaria
Населенный пункт: гр.Пловдив
Адрес: бул. България 49 А
Контактные телефоны: 0899960123
E-mail: office@openhomes.bg

https://